Derzeit befinden sich 189 Immobilienobjekte im Sortiment
Neuwertige Obergeschosswohnung mit Südloggia und moderner Einbauküche in Bad Zwischenahn/zentrumsnah













Daten
- Objektnr.:
- Referenz 170145
- Lage:
- 26160 Bad Zwischenahn
- Wohnfläche:
- 64 m²
- Baujahr/Baubeginn:
- 1984/2012/2019
- Preis:
- VERMIETET
Objektbeschreibung
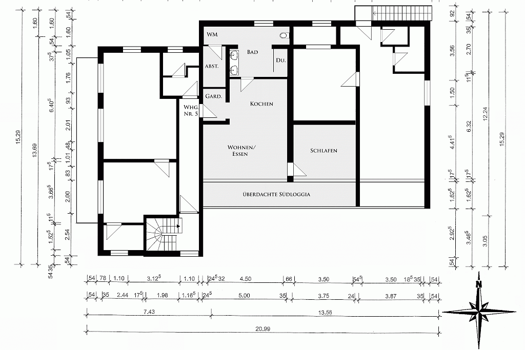
Diese komplett modernisierte Wohnanlage mit insgesamt 6 individuell gestalteten Wohnungen steht nunmehr zur langfristigen Vermietung an. Das Sechsfamilienhaus befindet sich in einem ruhigen Wohngebiet am Ende eines kleinen Stichweges in unserem beliebten Kur- und Ferienort Bad Zwischenahn. Zur Vermietung steht die extravagante Obergeschosswohnung Nr. 5 und besticht durch seine lichtdurchfluteten Räumlichkeiten und sorgt somit für eine behagliche Wohlfühl- Atmosphäre. Die Wohnung Nr. 5 unterteilt sich in einen großzügigen Wohn- und Essbereich mit offen gestaltetem Kochbereich inkl. neuer Einbauküche mit Tresen, ein geräumiges Schlafzimmer, einen modernen Badbereich mit begehbarer Dusche, Hauswirtschaftsraum sowie Flurbereich. Vom Wohnbereich aus gelangen Sie auf die großzügige Loggia in optimaler Südausrichtung. Zum Mietangebot gehören weiterhin ein PKW- Stellplatz auf dem Hausgrundstück sowie ein gemeinschaftlich genutzter Abstellraum für Fahrräder.
Lage
Diese modernisierte Wohnanlage mit insgesamt 6 Wohneinheiten liegt in einem gepflegten Wohngebiet am Ende einer kleinen Stichstraße in unserem beliebten Kur- und Ferienort Bad Zwischenahn. Das Fußwege- und Radwandernetz mit all seinen attraktiven Ausflugszielen liegt unmittelbar vor Ihrer Haustür. Alle Einkaufsmöglichkeiten und weitere Dienstleistungen, Ärzte, Kindergarten und alle Schulstufen etc. sind im nahen Zentrum von Bad Zwischenahn in wenigen Minuten zu Fuß oder mit dem Fahrrad zu erreichen.
Grundrisse
Ausstattung
- sämtliche Fenster in weißer Kunststoffausführung mit Isolierverglasung, bodentiefe Fensterelemente als Zugang zu der Terrasse
- Außenfensterbänke als Rollschicht, Innenfensterbänke aus Kunststein
- Hauseingangstüren in weißer Kunststoffausführung mit Strukturglasausschnitt und Isolierverglasung
- weiße Innentüren mit entsprechender Holzzarge und Edelstahldrückergarnitur
- Gas- Zentralheizung mit Warmwasseraufbereitung (Fabrikat: Vailllant, Baujahr 2012); zur Wärmeverteilung in den Räumen sind weiße Plattenheizkörper jeweils mit Thermostatventil vorhanden
- geschlossene Treppenhausanlage mit Trittstufen aus Marmor mit einseitigem Stahlgeländer (weiß gestrichen) mit Handlauf
- Fußböden einheitlich neu gestaltetet mit einem hochwertigen Design- Fußboden in Holzoptik
- Badbereich mit weißen Wand- und Bodenfliesen gestaltet, ausgestattet mit Waschbecken, WC und begehbarer Dusche, Sanitärobjekte in weiss
- große Loggia in optimaler Südausrichtung.
- neu gestalteter Kochbereich ausgestattet mit erstklassiger Einbauküche mit grauen Fronten sowie hellgrauer Arbeitsplatte
- Waschmaschinen- und Trockneranschluss im Hauswirtschaftsraum
- gemeinschaftlicher Abstellraum für Fahrräder
- TV- Empfang über Sat.- Anlage
Energieausweis
- Energieverbrauchsausweis vorhanden
- Energieverbrauchskennwert 130,9 kWh/(m²*a)
- Energieverbrauch für Warmwasser enthalten
- wesentlicher Energieträger: Erdgas
- Erstellungsdatum ab 01.05.2014 (EnEV 2014)