Derzeit befinden sich 189 Immobilienobjekte im Sortiment
Attraktive Obergeschoss- Wohnung mit Südwest- Loggia und Einbauküche in Bad Zwischenahn/ zentrumsnah














Daten
- Objektnr.:
- Referenz 110136
- Lage:
- 26160 Bad Zwischenahn
- Wohnfläche:
- 72 m²
- Nutzfläche:
- 17 m²
- Baujahr/Baubeginn:
- 1993
- Preis:
- VERMIETET
Objektbeschreibung
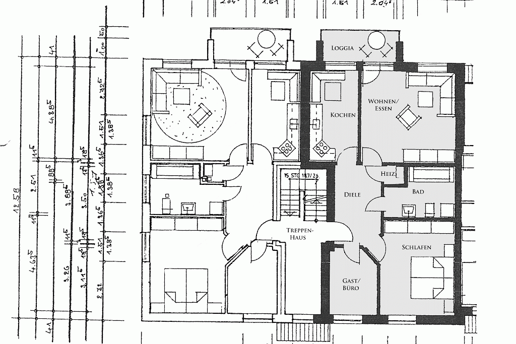
In zentraler Lage unseres beliebten Kurortes Bad Zwischenahn steht diese charmante Obergeschosswohnung zur Vermietung an. Diese gepflegte Obergeschosswohnung liegt in einem ruhigen Mehrfamilienhaus in der 1. Etage. Das neue Zuhause unterteilt sich in einen großzügigen Wohn- und Essbereich mit Zugang zur Südwest- Loggia, eine großzügige Wohnküche inkl. gepflegter Einbauküche, ein geräumiges Schlafzimmer inkl. Einbau- Kleiderschrank, ein Wannenbad/WC, ein Gästezimmer/ Büro/ Abstellraum, einen Heizungsraum sowie eine große Eingangsdiele. Zur Wohnung gehört weiterhin direkt zugeordneter PKW- Stellplatz unmittelbar vor Ihrer Haustür.
Lage
Weiterhin erreichen Sie in nur wenigen Gehminuten vielfältige Einkaufsmöglichkeiten, Ärzte und Apotheken, die beliebte Flaniermeile mit seinen zahlreichen Boutiquen und Cafés sowie das Zwischenahner Meer und die Kuranlagen. Genießen Sie die perfekte Verbindung aus zentraler Lage und ruhigem Wohnen mitten im Grünen. Ebenso sind direkte Anbindungen zum weitläufigen Wege- und Radwandernetz des Ammerlandes vorhanden.
Grundrisse
Ausstattung
- weiße Kunststofffenster mit Sprossenteilung und Isolierverglasung
- Hauseingangstür in Holzausführung in weiss mit Mehrfachverriegelung
- Wohnungseingangstür als schwere „Buche“ Röhrenspantür in Stahlzarge mit Spion
- Innentüren mit Holzzarge in „Buche“
- Fußböden im Wohn- und Esszimmer, im Schlafzimmer, im Büro/Gast/ Abstellraum sowie in der Eingangsdiele einheitlich mit einem modernen Laminatfußboden gestaltet
- Fußboden in der Wohnküche mit einer terrakottafarbenen Bodenfliese gestaltet
- Badbereich türhoch hell gefliest mit umlaufender Wand- Bordüre, ausgestattet mit hellen Bodenfliesen, Waschtisch, Badewanne und wandhängendem WC, Sanitärobjekte in weiss
- Waschmaschinenanschluss in Badbereich vorhanden
- die Wohnung ist mit einer eigenen Heizungsanlage mit Warmwasserversorgung ausgestattet
- Kabel- TV- Anschluss
- die gepflegte Einbauküche inkl. Elektrogeräten ist bereits im angegebenen Mietpreis enthalten
- im Schlafzimmer ist ein hochwertiger Einbau- Kleiderschrank in Tischlerqualität eingebaut worden
- sonniger Balkon in Südwest- Ausrichtung mi Markise
- die Pflege der Außenanlagen, die Treppenhausreinigung sowie der Winterdienst werden von der Hausverwaltung durchgeführt.
- für die Wohnung steht ein PKW- Stellplatz auf dem Hausgrundstück zur Verfügung
Energieausweis
- Energiebedarfsausweis vorhanden
- Endenergiebedarf 122,5 kWh/(m²*a)
- wesentlicher Energieträger: Erdgas
- Energieeffizienzklasse: D
- Erstellungsdatum ab 01.05.2014 (EnEV 2014)