Derzeit befinden sich 189 Immobilienobjekte im Sortiment
Imposantes Neubau- Reihenmittelhaus mit Einbauküche u. geschützt liegendem Gartenbereich in begehrter Wohnlage in Leer/ Loga







Daten
- Objektnr.:
- Referenz 290147
- Lage:
- 26789 Leer- Loga
- Wohnfläche:
- 100 m²
- Baujahr/Baubeginn:
- 2021
- Preis:
- VERMIETET
Objektbeschreibung
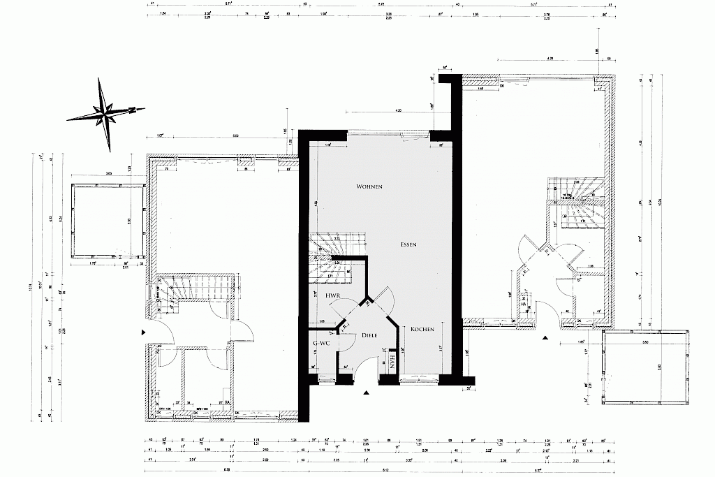
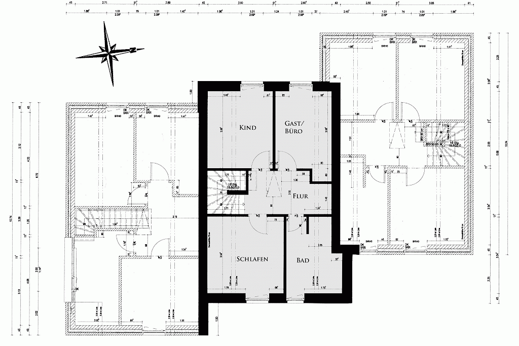
In zentrumsnaher Wohnlage von Leer im beliebten Stadtteil Loga wird derzeit diese erstklassige Immobilie errichtet. Zur langfristigen Vermietung steht das Reihenmittelhaus auf dem ruhig gelegenen Hintergrundstück noch zur Verfügung. Das Reihenhaus Nr. 43c besticht durch modernste Bauweise, eine durchdachte Raumaufteilung, erstklassige Ausstattungsdetails sowie hochwertigste Materialienauswahl. Die Immobilie wird Sie sofort durch die idealen Lichtverhältnisse, die besondere Aufmachung sowie durch die begehrte Wohnlage begeistern. Die Erdgeschossebene unterteilt sich in einen lichtdurchfluteten Wohn- und Essbereich mit Zugang zur sonnigen Südwestterrasse, einen direkt angrenzenden Kochbereich inkl. moderner Einbauküche mit hochwertigen Elektrogeräten, einen praktikablen Hauswirtschaftsraum, ein hell gestaltetes Gäste- WC sowie eine einladende Eingangsdiele. Optisch ansprechend wurde die Treppe ins Obergeschoss im Wohnbereich integriert. Das Obergeschoss des Hauses begeistert weiterhin durch ein großzügiges Schlafzimmer, ein geräumiges Gäste- bzw. Kinderzimmer, ein helles Arbeitszimmer, einen modernen Badbereich mit Dusche sowie Flurbereich. Abgerundet wird dieses Mietangebot durch einen PKW- Stellplatz sowie durch den pflegeleicht angelegten Gartenbereich.
Lage
Die Stadt Leer (Ostfriesland) ist die Kreisstadt des Landkreises Leer in Niedersachsen. Mit ca. 34.500 Einwohnern ist sie nach Emden und Aurich die drittgrößte Stadt Ostfrieslands. Die malerische Altstadt gilt wegen der zahlreich restaurierten historischen Häuser, der engen Gassen und der Lage direkt am Wasser als die Wertvollste der Region. Die romantische Altstadt hat die Einkaufsstadt über die Region hinaus bekannt gemacht. Dicht beieinander finden sich in den historischen Bürgerhäusern originelle kleine Geschäfte, eine große Auswahl an kompetenten Fachgeschäften und beliebten Filialisten. Gemütliche Restaurants und Cafés, bieten entlang der lang gestreckten Fußgängerzone einen guten Grund zum Verweilen und Genießen. Direkt am Museumshafen liegen mit dem Rathaus und der Waage die beiden Wahrzeichen der Stadt. Vier Burgen, zahlreiche Bürgerhäuser und Kirchen aus mehreren Jahrhunderten sind in der Stadt zu finden. Dieses erstklassige Komfort- Wohnhaus liegt im leeraner Stadtteil Loga im Osten der Stadt Leer (Ostfriesland) an den Flüssen Leda und Jümme. Loga zeichnet sich neben der zentrumsnahen Lage ebenfalls aus durch die Nähe zu den historischen Parks bei den Schlössern Wasserschloss Evenburg und Herrenhaus Philippsburg sowie dem 32 ha großen Julianenpark, die zu langen Spaziergängen einladen. Mit den Autobahnen A 28 (Richtung Bremen) und A31 (Richtung Ruhrgebiet) sowie dem niederländischen Autoschnellweg A 7 (E 22) ist Leer verbunden mit dem überregionalen Fernstraßennetz. Die Bahnstrecken Norddeich-Rheine und Groningen-Emden-Oldenburg kreuzen sich im IC-Bahnhof Leer, so dass die Stadt Leer auch per Bahn über eine hervorragende Verkehrsanbindung verfügt.
Grundrisse
Ausstattung
- das Gebäude wurde gemäß den Richtlinien der aktuellen Energiesparverordnung erstellt
- sämtliche Fenster und Fenstertüren als hochwertige Kunststofffenster
- alle Fenster und Außentüren mit spezieller Energiesparverglasung (Dreifachverglasung) ausgestattet
- offene Massivholztreppe mit einseitigem Geländer aus Holz mit Holzhandlauf (weiss) und Echtholztreppenstufen (Eiche natur) optisch ansprechend im Wohnbereich integriert
- weiße Innentüren mit entsprechender Holzzarge mit Edelstahldrückergarnitur
- die Fußböden im Erdgeschoss sowie das Bad des Obergeschosses werden mit einer sandfarbenen Bodenfliese in Holzoptik gestaltet
- die weiteren Fußböden im Obergeschoss (ausgenommen Bad) werden ausgestattet mit einem modernen Vinylfußboden in Holzoptik
- Es wurde eine zukunftsfähige Brennwerttherme für niedrigen Energieverbrauch und hohen Wärmekomfort zur Wärmeversorgung der Wohnräume und zur Brauchwassererwärmung mit witterungsgeführter Steuerung eingebaut.
- Die Versorgung mit Heizenergie und Warmwasser erfolgt durch eine zukunftsfähige Zentral- Brennwerttherme für niedrigen Energiebedarf und hohen Wärmekomfort. Weiterhin wird ein Warmwasserspeicher eingebaut, der unterstützt wird durch Solar- Flachkollektoren auf dem Dach des Hauses. Alle Zimmer werden mit einer Fußbodenheizung mit Einzelraumsteuerung ausgestattet
- Lüftungsanlage (Vorteile: ideale Raumluftfeuchte das ganze Jahr über, Pollen und Giftstoffe in der Luft gelangen erst gar nicht in die Wohnung und durch immer frische Luft bleibt Schimmelbefall aus)
- das Haus wird ausgestattet mit einer neuen Einbauküche mit der Frontfarbe sandgrau mit Holz- Arbeitsplatte (Asteiche natur) inkl. hochwertiger „Miele“-Elektrogeräte (bereits im angegebenen Mietpreis enthalten)
- das Gäste- WC wird ausgestattet mit einem Handwaschbecken sowie einem wandhängendem WC, Sanitärobjekte in weiss
- das Bad im Obergeschoss wird ausgestattet mit einer bodengleichen Dusche mit Glaswand, wandhängendem WC sowie Waschtisch; Sanitärobjekte in weiss
- im rückwärtigen Gartenbereich wird eine großzügige Terrasse in optimaler Südwestausrichtung geschaffen
- der Gartenbereich wird pflegeleicht angelegt u. a. mit einer großen Rasenfläche sowie einer grünen Grundstückseinfassung sowie kleiner Wallanlage.
- TV- Empfang über Sat.- Anlage
Energieausweis
- Energiebedarfsausweis wird zur Zeit erstellt