Derzeit befinden sich 189 Immobilienobjekte im Sortiment
Modernes Einfamilienhaus mit Carport, aparter Einbauküche, zauberhaftem Garten mit gr. Terrasse sowie hochwertiger Ausstattung in Oldenburg- Bloherfelde











Daten
- Objektnr.:
- Referenz 250107
- Lage:
- 26129 Oldenburg-Bloherfelde
- Wohnfläche:
- 168 m²
- Nutzfläche:
- 26 m²
- Baujahr/Baubeginn:
- 2006
- Preis:
- VERMIETET
Objektbeschreibung
Abgerundet wird dieses attraktive Mietangebot durch eine Carport- Anlage, einen Abstellraum für Gartengeräte und Fahrräder sowie den zauberhaft angelegten Gartenbereich mit Sonnenterrasse. Der gute Wohn- und Erholungswert des Domizils wird unterstrichen durch kurze Verkehrsanbindungen einerseits zur Oldenburger City und andererseits in das naturnahe Umfeld, u. a. über Radwege in den beliebten „Staatsforst Wildenloh“ oder zum Badesee "Woldsee". Vielseitige Einkaufsmöglichkeiten, Ärzte, Apotheken, Schulen, Kindergärten sowie Bushaltestelle sind im umliegenden Umfeld schnell zu erreichen.
Lage
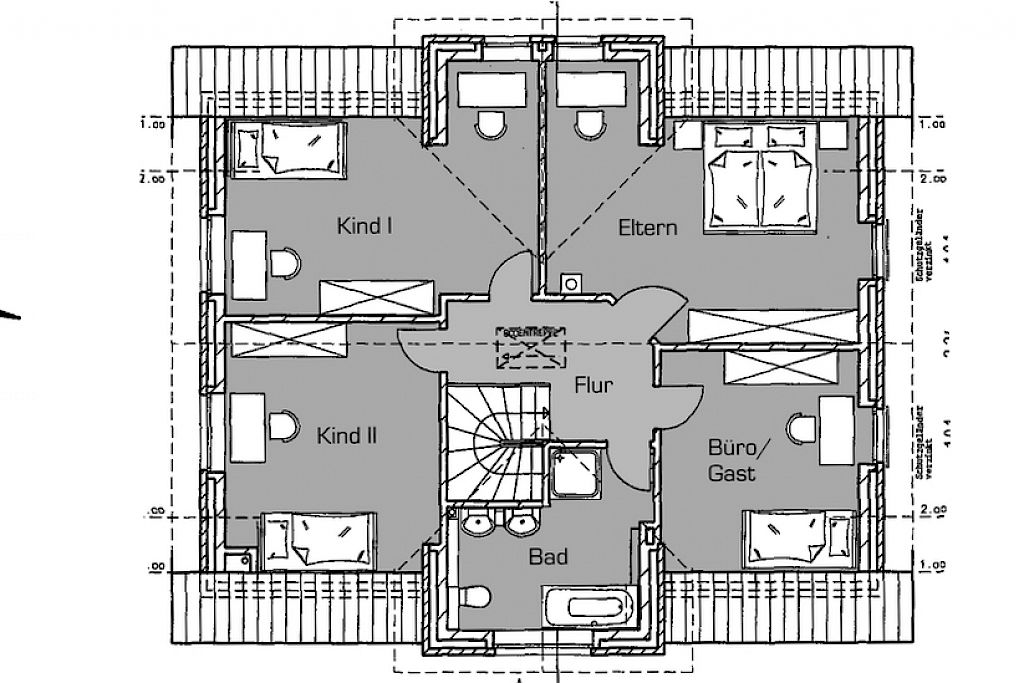
Dieses attraktive Wohnhaus liegt am westlichen Stadtrand der beliebten Residenzstadt Oldenburg im reizvollen Stadtteil Bloherfelde. Das im Jahre 2006 errichtete Wohnhaus besticht durch seine gelungene Raumgliederung sowie durch die moderne und hochwertige Ausstattung. Im Erdgeschoss bietet diese Immobilie einen großzügigen Wohn- und Essbereich mit ansprechenden Specksteinofen, Nussbaum- Parkettfußboden und Zugang zur Südterrasse. Die Wohnküche ist mit einer modernen "Nolte"- Einbauküche ausgestattet und verfügt über ebenfalls über einen direkten Zugang zum Terrassenbereich. Von der Küche erreichen Sie ebenfalls den praktikablen Hauswirtschaftsraum. Die einladende Eingangsdiele mit Treppe ins Obergeschoss sowie das stilvoll ausgestattete Duschbad/WC runden den Erdgeschossbereich gelungen ab. Das Obergeschoss unterteilt sich auf in drei große Schlafzimmer, ein Gästezimmer/ Büro sowie ein Wohlfühl- Bad mit Doppelwaschtisch, Wanne und Fußbodenrücklauferwärmung. Das gesamte Obergeschoss ist mit einem optisch ansprechenden Nußbaum- Laminatfußboden versehen (ausgenommen Bad).
Grundrisse
Ausstattung
- hochwertige, bewährte Kunststofffenster mit innenliegender Sprossenteilung (Drehflügeln, Schiebeelemente sowie feststehende Elemente)
- überwiegend bodentiefe Fensterelemente im Erdgeschoss sorgen für lichtdurchflutete Räumlichkeiten
- sämtliche Fenster im Erdgeschoss sind abschließbar
- Außenrollläden vorhanden
- Hauseingangstür ebenfalls in weißer Kunststoffausführung mit Glassauschnitten und Edelstahl- Türdrücker
- Beheizung und Warmwasseraufbereitung durch eine Gastherme (im Hauswirtschaftsraum installiert); weiße Plattenheizkörper in den Räumen vorhanden
- Fußbodenerwärmung im Bad OG zusätzlich vorhanden
- teilweise Decken-Halogenspots vorhanden
- Lautsprecher- Deckenboxen in mehreren Räumen im Haus installiert
- die gesamte Erdgeschossebene (ausgenommen Wohnbereich) mit terrakottafarbenen Bodenfliesen gestaltet
- aparte Einbauküche mit cremefarbenen Fronten und Holzarbeitsplatte; ausgestattet mit hochwertigen Elektrogeräten (bereits im Mietpreis enthalten)
- Fußboden im Wohn-und Essbereich mit hochwertigem Nussbaum-Parkett ausgestattet
- Specksteinofen als Highlight im Wohn-und Essbereich integriert
- weiße Innentüren mit entsprechender Holzzarge und Edelstahldrückergarnitur
- Duschbad-WC im EG mit terrakottafarbenen Bodenfliesen und weißen Wandfliesen gestaltet; Ausstattung mit Waschtisch, einstiegsfreundlicher Dusche mit Echtglas-Duschabtrennung und wandhängendem WC (Sanitärobjekte in weiss)
- praktikabler Hauswirtschaftsraum direkt an die Küche angrenzend mit Anschlüssen für Waschmaschine und Trockner
- die Fußböden im gesamten Obergeschoss (ausgenommen Badbereich) sind mit hochwertigen Laminat- Fußboden in Nussbaumholz-Optik gestaltet
- Badbereich im Obergeschoss mit weißen Wandfliesen mit grauer Bordüre und grauen Bodenfliesen gestaltet; Ausstattung mit Badewanne, Doppelwaschtischanlage und wandhängendem WC; Fußbodenrücklauf- Erwärmung und Handtuschheizkörper im Bad vorhanden
- Dachbodenbereich für Abstellzwecke nutzbar
- Carportanlage an der Ostseite des Wohnhauses in weißer Holzkonstruktion errichtet mit einem PKW- Abstellplatz und rückwärtigen Geräteraum für Fahrräder und Gartenutensilien
- liebevoll angelegter Gartenbereich mit großzügiger Terrasse in optimaler Südausrichtung
- Zugang zur Südterrasse sowohl vom Wohnbereich als auch von der Wohnküche aus
Energieausweis
- Energieverbrauchsausweis vorhanden
- Energieverbrauchskennwert 63,1 kWh/(m²*a)
- Energieverbrauch für Warmwasser enthalten
- wesentlicher Energieträger: Erdgas
- Energieeffizienzklasse B
- Erstellungsdatum ab 01.05.2014 (EnEV 2014)