Derzeit befinden sich 189 Immobilienobjekte im Sortiment
Exklusive Doppelhaushälfte (Neubau-Erstbezug) mit großzügiger Südwest-Terrasse, pflegeleicht angelegtem Gartenbereich und Carport in begehrter Wohnlage in Bad Zwischenahn/zentrumsnah
















Daten
- Objektnr.:
- Referenz 210111
- Lage:
- 26160 Bad Zwischenahn
- Wohnfläche:
- 113 m²
- Nutzfläche:
- 45 m²
- Baujahr/Baubeginn:
- 2018
- Preis:
- VERMIETET
Objektbeschreibung
In zentrumsnaher Wohnlage von Bad Zwischenahn wurde in dem neu gestalteten Wohngebiet „auf Hardenberg“ diese markante Doppelhaushälfte nebst Carport- Anlage errichtet. Die Doppelhaushälfte besticht durch modernste Bauweise, eine durchdachte Raumaufteilung, erstklassige Ausstattungsdetails sowie hochwertigste Materialienauswahl und steht nunmehr zur langfristigen Vermietung an. Die moderne Doppelhaushälfte wird Sie sofort durch den großen Terrassenbereich in idealer Südwestausrichtung, durch die idealen Lichtverhältnisse sowie durch die begehrte Wohnlage am Ende einer Sackgasse verzaubern. Die Erdgeschossebene unterteilt sich in einen lichtdurchfluteten Wohn- und Essbereich mit Zugang zur sonnigen Südwestterrasse, einen offen gestalteten Kochbereich, einen praktikablen Hauswirtschaftsraum mit Nebeneingangstür, ein hell gestaltetes Gäste-WC sowie eine einladende Eingangsdiele. Das Obergeschoss des Hauses begeistert weiterhin durch ein großzügiges Schlafzimmer mit Ankleidebereich, ein geräumiges Gästezimmer, ein helles Arbeitszimmer, einen modernen Badbereich mit Dusche und Wanne sowie Flurbereich. Abgerundet wird dieses Mietangebot durch eine Carport-Anlage nebst Abstellraum für Gartengeräte und Fahrräder mit angrenzendem Abstellraum sowie durch den liebevoll angelegten Gartenbereich mit großer Südwestterrasse.
Lage
Die moderne Neubau- Doppelhaushälfte mit sonniger Südwestterrasse liegt in einem neu gestalteten Wohngebiet "auf Hardenberg" im beliebten Kur- und Ferienort Bad Zwischenahn. Das Fußwege- und Radwandernetz mit all seinen attraktiven Ausflugszielen liegt unmittelbar vor Ihrer Haustür. Alle Einkaufsmöglichkeiten und weitere Dienstleistungen, Ärzte, Kindergarten und all Schulstufen etc. sind im nahen Zentrum von Bad Zwischenahn in wenigen Minuten zu erreichen. Eine ideale Anbindung besteht auch an die Autobahn und zu den Städten Oldenburg, Leer und Bremen. In nur wenigen Autominuten erreichen Sie das Zwischenahner Meer sowie weitere Attraktionen von Bad Zwischenahn u.a. den "Park der Gärten", den "Golfplatz" sowie den "Sport-Segelflughafen". Interesse geweckt? Vereinbaren Sie einen persönlichen Besichtigungstermin und schon bald könnten wir Sie als Neubürger im Kurort Nr. 1 in Niedersachsen willkommen heißen. Bad Zwischenahn wird Sie begeistern und Sie werden sich vom ersten Moment an vertraut und wie zuhause fühlen. An einem der schönsten Seen Deutschland, dem Zwischenahner Meer, können Sie sich erholen, das milde Klima genießen und auf Entdeckertour gehen. Die belebte "Flaniermeile" in Bad Zwischenahn mit seinen vielfältigen Geschäften sowie mit gemütlichen Cafés und kulinarischen Restaurants erwarten Sie zum Shoppen und Flanieren.
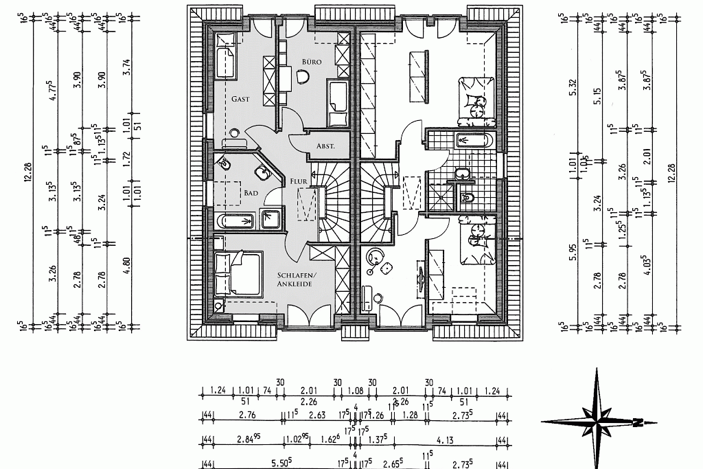
Grundrisse
Ausstattung
- das Gebäude wird gemäß den Richtlinien der aktuellen Energiesparverordnung erstellt und erfüllt die Kriterien eines KfW- Effizienzhauses 70
- Innenfensterbänke als Agglo- Marmorplatten, in den Badbereichen werden die Innenfensterbänke gefliest
- sämtliche Fenster und Fenstertüren als hochwertige Kunststofffenster; die Fenster bestehen aus dickwandigem Kunststoff mit einer Stahlarmierung sowohl im Blendrahmen als auch im Flügelrahmen- dies sorgt für eine hohe Wärme- und Schalldämmung sowie für optimale Stabilität des Profils. Es werden weiße Einhanddrehkippbeschläge mit min. zwei einbruchhemmenden Pilzkopfverriegelungen und Eckarretierungen
- die zweiflügeligen Terrassentürelemente werden zur besseren Nutzung als Stulpflügel gestaltet, d. h. in der Mitte des Elementes steht kein "Pfosten"
- alle Fenster und Außentüren werden mit spezieller Energiesparverglasung (Dreifachverglasung mit einem U-Wert von 0,7 W/m²K) ausgestattet
- sichere Haustüranlage in Kunststoffausführung mit einem Profilzylinder- Sicherheitsschloss und Glasausschnitt; an der Außenseite der Eingangstür wird ein Edelstahl Stoßgriff angebracht
- sämtliche Fenster erhalten Außenrollläden; im Erdgeschoss sind die Rollläden gurtbetrieben- die Außenrollläden im Obergeschoss werden elektrisch betrieben.
- das Haus erhält eine umfangreiche Elektroausstattung mit ausreichend Steckdosen; sämtliche Schalter und Steckdosen in reinweiss
- Die Treppenhausanlage wird individuell nach Maß gefertigt als Massivholztreppe mit einseitigem Geländer aus Metallstäben mit Holzhandlauf
- weiße Innentüren mit entsprechender Holzzarge mit Edelstahldrückergarnitur
- Die Fußböden im Erdgeschoss (ausgenommen Wohnzimmer) sowie im Bad des Obergeschosses werden mit einer aparten hellgrauen Bodenfliese gestaltet
- Die Fußböden im Obergeschoss (ausgenommen Bad) sowie im Wohnzimmer erhalten einen modernen und pflegeleichten Vinylboden in Holzoptik
- Es wird eine zukunftsfähige Brennwerttherme für niedrigen Energieverbrauch und hohen Wärmekomfort zur Wärmeversorgung der Wohnräume und zur Brauchwassererwärmung mit witterungsgeführter Steuerung eingebaut.
- Zur Unterstützung der Brauchwassererwärmung werden auf der zur Sonne gewandten Dachseite zwei Flachkollektoren installiert. Ein bivalenter Solarspeicher mit 300 Liter rundet die Warmwasserversorgung ab.
- zur Wärmeverteilung in den Räumen werden weiße Ventilheizkörper mit Thermostatventilen installiert. Das Bad wird anstelle des Ventilheizkörpers mit einem Handtuchheizkörper und einer Fußbodenerwärmung ausgestattet
- das Haus erhält ein modernes Lüftungskonzept. Dieses beinhaltet in den Aufenthaltsräumen für die Zuluft jeweils einen schallgedämmten Außenwanddurchlass inkl. Filter. Die Abluft wird mittels Ventilator in den Räumen: Küche, Gäste-WC, Bad und Hauswirtschaftsraum abgeführt. Die Steuerung der Abluftventilatoren erfolgt über einen zentralen Schalter im Hauswirtschaftsraum. Dieses Lüftungskonzept sorgt für die notwenige Lüftung für den Feuchteschutz und ersetzt nicht die Intensivlüftung mittels einer aktiven Fensterlüftung.
- alle Räume werden mit einer Glattvliestapete an Wänden und Decken versehen und erhalten einen hellen Anstrich
- das Gäste-WC wird ausgestattet mit einem Handwaschbecken sowie einem wandhängendem WC, Sanitärobjekte in weiss
- das Bad im Obergeschoss wird ausgestattet mit einer einstiegsfreundlichen Duschtasse mit Echtglasduschabtrennung, einer Badewanne, wandhängendem WC sowie Waschtisch; Sanitärobjekte in weiss
- Waschmaschinen- und Trockneranschluss sind im Hauswirtschaftsraum vorhanden
- im Einfahrtsbereich des Grundstückes wird eine zum Haus angepasste Carport- Anlage errichtet, die einen PKW- Abstellplatz sowie einen Abstellraum für Fahrräder und Gartengeräte bietet
- im rückwärtigen Gartenbereich wird eine großzügige Terrasse in optimaler Südwestausrichtung geschaffen
- der Gartenbereich wird in liebevoller Weise angelegt u. a. mit einer großen Rasenfläche sowie einer grünen Grundstückseinfassung.
Energieausweis
- Energiebedarfsausweis vorhanden
- Endenergiebedarf 33,2 kWh/(m²*a)
- wesentlicher Energieträger: Erdgas+Solar
- Energieeffizienzklasse: A
- Erstellungsdatum ab 01.05.2014 (EnEV 2014)