Das Schönste am Suchen ist das Finden

Immobilien (Gewerbe)


Derzeit befinden sich 193 Immobilienobjekte im Sortiment


Fortschrittliches Wohn- und Geschäftshauses in Oldenburg- Krusenbusch mit Büroflächen flexibel von 129 m² bis 300 m², Luft- Wärmepumpe, Highspeed-Glasfaser-Anschluss u. Lift in Oldenburg- Krusenbusch

Außenansicht

Daten

Objektnr.:
270117
Lage:
26135 Oldenburg
Nutzfläche:
129 m²
Baujahr/Baubeginn:
2024
Preis:
VERMIETET

Objektbeschreibung

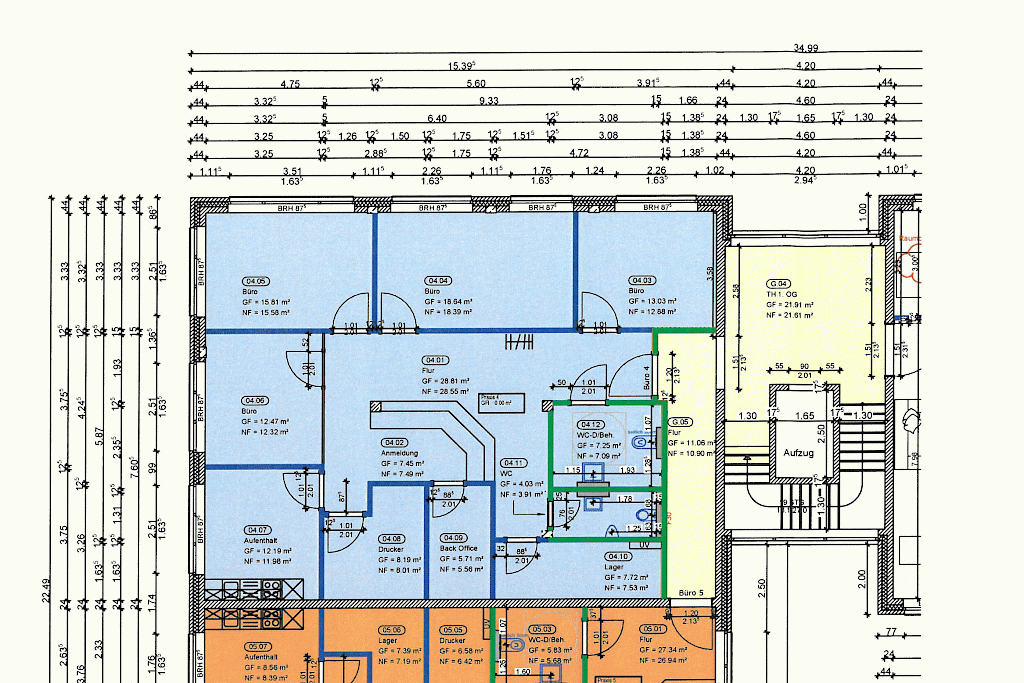
Diese gut angebundene Neubauimmobilie bietet reichlich Platz für Büros oder Praxen. Sie können Einheiten zwischen 129 m² - 300 m² flexibel zusammenstellen. Die fortschrittliche Immobilie zeichnet sich vor allem aus durch: barrierefreie Grundrisse, großer Fahrstuhl, lichtdurchflutete Räumlichkeiten mit großen Fensterflächen, Highspeed – Glasfaseranschluss, Bushaltestelle vor der Tür, 5 Minuten Fahrzeit bis zur nächsten Autobahn, Ladepunkte für Elektroautos, Gebäudehülle in KfW55 Standard, Wärmeerzeugung durch eine moderne Luft- Wärmepumpe sowie Photovoltaikanlage auf dem Dach. Durch die Pfosten-Riegel Konstruktion sind Sie frei in der Gestaltung der Grundrisse, die dargestellten Räume dienen als Beispiel und können Individuell angepasst werden. Ausreichend Parkplätze sind selbstverständlich vorhanden. Ein idealer Ort für Ihr Unternehmen.

Lage

Im Süden der beliebten Stadt Oldenburg wird dieses moderne Wohn- und Geschäftshaus mit 3 Wohneinheiten und insgesamt 7 Gewerbeeinheiten derzeit errichtet. Bei dem Neubau handelt es sich um ein eindrucksvolles Gebäude, das mit seiner gradlinigen Architektur, mit seiner fortschrittlichen Ausstattung sowie dem modernen Stil alle Blicke auf sich zieht. Die Immobilie beeindruckt durch seine klare Linienführung, optimale Lichtverhältnisse, eine variable Raumgliederung sowie die durchdachte Materialienauswahl.

Grundrisse

Energieausweis

  • Energiebedarfsausweis wird noch erstellt
Abbildungen

Immobilienvermarktung aus Leidenschaft

Ihr Immobilienpartner in Bad Zwischenahn, Oldenburg und Umgebung