Derzeit befinden sich 189 Immobilienobjekte im Sortiment
Vermietete Obergeschosswohnung mit Südwest-Loggia, PKW-Stellplatz und Kellerraum in einem gepflegten Vierfamilienhaus in Bad Zwischenahn












Daten
- Objektnr.:
- Referenz 110128
- Lage:
- 26160 Bad Zwischenahn
- Wohnfläche:
- 96 m²
- Nutzfläche:
- 20 m²
- Baujahr/Baubeginn:
- 1970
- Preis:
- VERKAUFT
Objektbeschreibung
In zentrumsnaher Wohnlage an Ende einer kleinen Sackgasse im Kur- und Ferienort Bad Zwischenahn steht diese vermietete Eigentumswohnung im I. Obergeschoss/ Dachgeschoss zum Verkauf an. Die geräumige Wohnung ist bereits vermietet und stellt somit eine gute Kapitalanlage dar. Die Wohnung Nr. 3 liegt in einem gepflegten Vierfamilienhaus (je 2 Wohnungen pro Hauseingang) und besticht durch eine gelungene Raumgliederung, ideale Lichtverhältnisse sowie den gepflegten Zustand. Das Immobilienangebot unterteilt sich in einen lichtdurchfluteten Wohn- und Essbereich mit Zugang zur Südwestloggia, eine geräumige Essdiele, eine Küche, zwei Schlafzimmer , ein Gästezimmer/Büro, ein neu gestalteter Badbereich mit Wanne und Dusche. Weiterhin verfügt dieses Immobilienangebot über zwei separte Abstellräume im Kellergeschoss sowie einen PKW- Stellplatz auf dem Hausgrundstück.
Lage
Diese vermietete Obergeschosswohnung mit gelungener Raumgliederung und Südwestloggia liegt in einer ruhigen Sackgassenendlage in zentrumsnaher Wohnlage des Kur- und Ferienortes Bad Zwischenahn. Das Fußwege- und Radwandernetz mit all seinen attraktiven Ausflugszielen liegt unmittelbar vor Ihrer Haustür. Alle Einkaufsmöglichkeiten und weitere Dienstleistungen, Ärzte, Kindergarten und all Schulstufen etc. sind im nahen Zentrum von Bad Zwischenahn in wenigen Minuten zu erreichen.
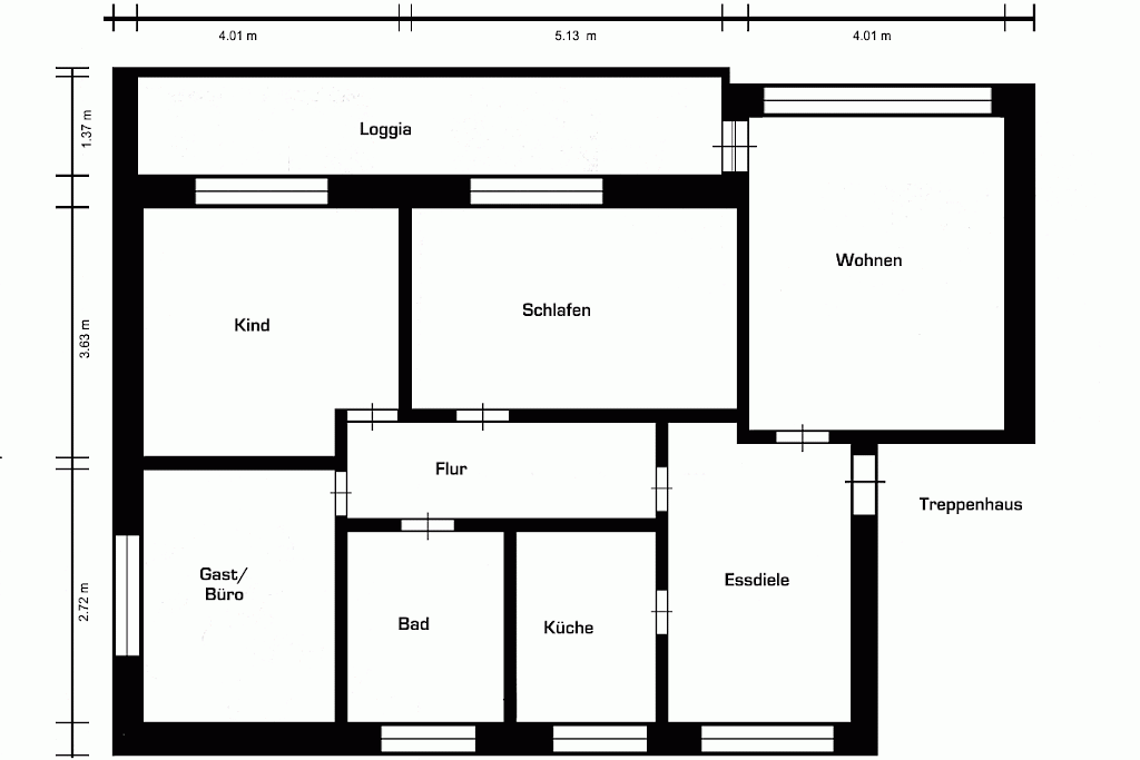
Grundrisse
Ausstattung
- Fundament und Bodenplatte in Beton und Stahlbeton
- zweischaliges Außenmauerwerk mit rotbuntem Verblender
- Geschoßdecken in Stahlbeton erstellt
- Dachform als Flachdach
- weiße Kunststofffenster mit Isolierverglasung
- Hauseingangstür mit elektrischem Türöffner in Aluminiumkonstruktion und Strukturglasausschnitten
- Treppenhausbeläge mit Kunststein ausgestattet, die Wandflächen im Treppenhaus sind mit Verblender versehen
- gemeinschaftliche Gas- Zentralheizung mit Warmwasserspeicher
- die Beheizung der Räume erfolgt über weiße Plattenheizkörper mit Thermostatventil
- weiße Holzinnentüren mit entsprechender Holzzarge
- Fußböden in der Küche und in der Essdiele mit weißen Bodenfliesen gestaltet
- Fußböden im Wohnzimmer, im Kinderzimmer sowie im Gästezimmer/ Büro mit Laminatfußboden gestaltet
- Fußboden im Schlafzimmer mit Teppichauslegware versehen
- Badbereich wurde bereits komplett neugestaltet; deckenhoch weiß gefliest mit umlaufender Bordüre, ausgestattet mit anthrazitfarbenen Bodenfliesen, Badewanne, einstiegfreundlicher Dusche mit Duschtür, Waschbecken, Bidet und wandhängendem WC, Sanitärobjekte in weiss
- überdachte Loggia in optimaler Südausrichtung
- TV- Empfang über Sat.- Anlage
- PKW- Stellplatz Nr. 3 an der Ostseite des Hauses ist der Wohnung direkt zugeordnet
Energieausweis
- Energiebedarfsausweis vorhanden
- Endenergiebedarf 236,4 kWh/(m²*a)
- wesentlicher Energieträger: Erdgas
- Energieeffizienzklasse: G
- Erstellungsdatum ab 01.05.2014 (EnEV 2014)