Derzeit befinden sich 189 Immobilienobjekte im Sortiment
Exklusive, neuwertige Hochparterre-Wohnung mit verglaster Südloggia, Garage und Einbauküche in Bad Zwischenahn- zentrumsnah









Daten
- Objektnr.:
- Referenz 200104
- Lage:
- 26160 Bad Zwischenahn
- Wohnfläche:
- 88 m²
- Baujahr/Baubeginn:
- 2014
- Preis:
- VERKAUFT
Objektbeschreibung
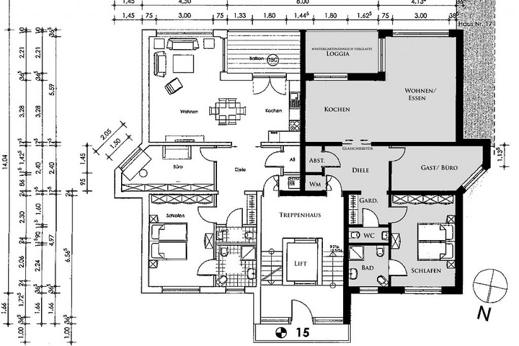
In zentraler, begehrter Wohnlage von Bad Zwischenahn sind diese eleganten Eigentumswohnungen im klassischen Hamburger Villenstil im Jahre 2014 errichtet worden. Auf dem neu erschlossenen Grundstück "auf Hardenberg" zur Größe von 3.898 qm wurden vier Häuser mit je 5 durchdachten Eigentumswohnungen errichtet. Alle Wohnungen verfügen über eine optimale Südausrichtung und bieten ein Höchstmaß an Komfort, Qualität und Privatleben. Eine der stilvollen Hochparterrewohnungen mit ca. 88 qm Wohnfläche steht nunmehr zum Verkauf an. Selbstverständliche Auszeichnungen dieses Wohndomizils sind u. a. Liftanlage in jedem Haus, modernste Erdwärmetechnik, elektrische Außenrollläden sowie höchste Qualität. Die exklusive Wohnung Nr. 15B unterteilt sich in einen lichtdurchfluteten Wohn- und Essbereich mit Zugang zur verglasten Südloggia "Sommergarten", ein offen gestalteter Kochbereich inkl. erstklassiger Einbauküche, ein großzügiges Schlafzimmer mit modernem Duschbad en suite, ein hell gestaltetes Gäste-WC, einen Waschmaschinenraum, einen Abstellraum sowie eine einladende Eingangsdiele mit Garderobenbereich. Weiterhin verfügt der Hochkellerbereich über einen hellen separaten Abstellraum für die Wohnung Nr. 15B. Im Außenbereich ist für die Wohnung eine direkt zugeordnete Garage vorhanden (Kaufpreis für die Garage 12.000,00 €). Zur gemeinschaftlichen Nutzung steht ein großzügiges Fahrradhaus im Außenbereich sowie ein Trockenraum im Kellergeschoss zur Verfügung. Sichern Sie sich Ihren Wohntraum schon heute und erfüllen Sie Ihre persönlichen Wünsche.
Lage
Die exklusive Hochparterre- Wohnung mit verglaster Südloggia liegt in einem neu gestalteten Wohngebiet "auf Hardenberg" im beliebten Kur- und Ferienort Bad Zwischenahn. Das Fußwege- und Radwandernetz mit all seinen attraktiven Ausflugszielen liegt unmittelbar vor Ihrer Haustür. Alle Einkaufsmöglichkeiten und weitere Dienstleistungen, Ärzte, Kindergarten und all Schulstufen etc. sind im nahen Zentrum von Bad Zwischenahn in wenigen Minuten zu erreichen. Eine ideale Anbindung besteht auch an die Autobahn und zu den Städten Oldenburg, Leer und Bremen. In nur wenigen Autominuten erreichen Sie das Zwischenahner Meer sowie weitere Attraktionen von Bad Zwischenahn u.a. den "Park der Gärten", den "Golfplatz" sowie den "Sport-Segelflughafen".
Grundrisse
Ausstattung
- alle Fenster haben zur besseren Wärme- und Schalldämmung Dreischeiben -Isolierverglasung erhalten
- elektrische Außenrollläden an sämtlichen Fenstern der Wohnung
- Innenfensterbänke aus Aglo- Marmor; Außenfensterbänke aus Aluminium weiß
- schwere Hauseingangstüren aus stahlverstärktem Kunststoff, ausgestattet mit elektrischem Türöffner, Drückergarnitur und Sicherheitszylinder (mit Wohnungstür gleichschließend)
- zur besonderen Sicherheit wurde eine Videoanlage mit Kamera an der Haustür sowie ein Monitor in der Wohnung installiert
- sichere, weiße Wohnungseingangstüren mit Stahlzarge und Spion
- jedes Treppenhaus mit elektrobetriebenem Personenaufzug
- Bodenbelag in den Treppenhäusern gestaltet mit hochwertigem Fliesenbelag
- exklusive Einbauleuchten, abgestimmte Namenschilder und ein hochwertiges Treppengeländer sorgen für den ersten guten Eindruck bereits im Treppenhaus
- Innentüren als weiße Qualitätstüren mit entsprechenden Holztürzargen mit Edelstahlbeschläge
- alle Räumlichkeiten sind mit einem einheitlichen stilvollen Fliesenbelag im modernen Format 60cm x 60cm gestaltet
- das Duschbad wurde ausgestattet mit einer einstiegsfreundlichen Duschtasse als Flachschale, Waschtischanlage mit Unterschrank und wandhängendem WC, Sanitärobjekte in weiß; hochwertige Badmöbel bieten ausreichend Abstellfläche
- Hochkellerbereich mit separatem Abstellraum für die Wohnung, Heizungsraum, Installationsraum sowie Trockenraum
- geschützt liegende, überdachte Loggia in optimaler Südausrichtung, mit hochwertigem frostsicheren Fliesenbelag sowie Balkonbrüstung und feuerverzinktem Geländer (hier ist eine rahmenlose Faltverglasung „sog. Sommergarten“ installiert worden, somit ist ein wintergartenähnlicher Platz zum Wohlfühlen und Entspannen entstanden.
- Die Belieferung der Wohnungen mit Heizenergie und Warmwasser erfolgt durch eine zentral betriebene Wärmepumpe, welche mit Erdwärme gespeist wird. Zur Unterstützung der Warmwasserversorgung im Spitzenlastbetrieb und zur Sicherstellung der erforderlichen Warmwasseraustrittstemperatur wurde zusätzlich ein Gasbrennwertkessel eingebaut.
- Die Wohnung ist mit einer Fußbodenheizung mit thermostatischer Regelung versehen. Zur Wärmeverbrauchsmessung und Abrechnung wurden für jede Wohnung zuverlässige geeichte Wärmemengenzähler installiert. Jede Wohnung ist jeweils mit einer Warm- und Kaltwassermessuhr ausgestattet.
- die Außenanlagen unterstreichen den gehobenen Wohnanspruch des "Anemonen- Parks": Das Gartengrundstück wurde von einem Gärtner in liebevoller Weise angelegt und mit einer umfassenden Bepflanzung versehen. Diese Gartenanlage wird nunmehr von einem Gärtner betreut und gepflegt. Die Bewohner des Hauses brauchen sich daher nicht um die Gartenpflege zu kümmern, sondern genießen lediglich den herrlichen Ausblick von den Balkonen bzw. Terrassen in die Gemeinschafts- Gartenanlage.
- an der Nord- und Ostseite der Wohnanlage steht ein großzügiger Abstellraum für Fahrräder mit elektrischem Rolltor zur Verfügung
- die Pflege der Außenanlagen, die Treppenhausreinigung, der Winterdient sowie der Mülltonnenservice werden von der Hausverwaltung durchgeführt. Die hierfür anfallenden Kosten sind bereits in der Nebenkostenvorauszahlung enthalten.
- für die Wohnung steht die Garage- Nr. 12 auf dem Hausgrundstück zur Verfügung.
Energieausweis
- Energiebedarfsausweis vorhanden
- Endenergiebedarf 13,8 kWh/(m²*a)
- wesentlicher Energieträger: Erdwärme+Erdgas
- Erstellungsdatum bis 30.04.2014 (EnEV 2009)