Derzeit befinden sich 189 Immobilienobjekte im Sortiment
Erstklassig modernisierte Traumwohnung im Dachgeschoss mit zwei Balkonen und Ausblick in das Landschaftsschutzgebiet in Bad Zwischenahn












Daten
- Objektnr.:
- Referenz 180108
- Lage:
- 26160 Bad Zwischenahn
- Wohnfläche:
- 110 m²
- Baujahr/Baubeginn:
- 1983/2016
- Preis:
- VERKAUFT
Objektbeschreibung
Die gelungen geschnittene Wohnung liegt im 2. Obergeschoss/ Dachgeschoss einer gepflegten Wohnanlage. Bei der Wohnung handelt es sich um einen Erstbezug nach erstklassiger Modernisierung, u. a. Neugestaltung des Badbereiches sowie des Gäste- WCs, kompletter Austausch der Fußbodenbeläge und Innentüren, Malerarbeiten sowie der Ausbau des Galeriebereiches. Die traumhafte Dachgeschosswohnung bietet alle Vorzüge für ein vorbildliches begehrenswertes Wohnen in reizvoller Lage mit einem beeindruckenden Ausblick in das angrenzende Landschaftsschutzgebiet "Wiesengrund". Die Erstbezug- Wohnung unterteilt sich in einen lichtdurchfluteten Wohn- und Essbereich und Zugang zum Süd-Balkon, eine Küche, Schlafzimmer sowie Gästezimmer jeweils mit Zugang zum Südost- Balkon, neuer Badbereich mit Badewanne und Dusche, Vorraum mit Waschmaschinen- und Trockneranschluss, Gäste- WC sowie eine einladende Eingangsdiele mit Treppe zum Dachboden. Weiterhin verfügt dieses attraktive Immobilienangebot über einen PKW- Stellplatz vor dem Haus sowie einen separaten Abstellraum im Kellergeschoss.
Lage
In begehrter Wohngebietsslage am Ende einer kleinen Sackgasse im Kur- und Ferienort Nr. 1 von Niedersachsen steht diese modernisierte Dachgeschosswohnung zum Verkauf an. Genießen Sie alle Vorzüge dieser top modernisierten Dachgeschoss- Wohnung (u.a. den traumhaften Ausblick sowie eine gelungene Raumaufteilung) und erfreuen Sie sich an entspannter und erholsamer Wohnatmosphäre in optimaler Lage von Bad Zwischenahn. Das Kur- und Ortszentrum mit der beliebten Flaniermeile, der Bahnhof, vielfältige Einkaufsmöglichkeiten und das Zwischenahner Meer mit seinen aufwändig angelegten Parkanlagen sind in wenigen Minuten zu Fuß oder mit dem Fahrrad zu erreichen. Ebenso besteht eine direkte Anbindung zum weitläufigen Wege- und Radwandernetz des Ammerlandes.
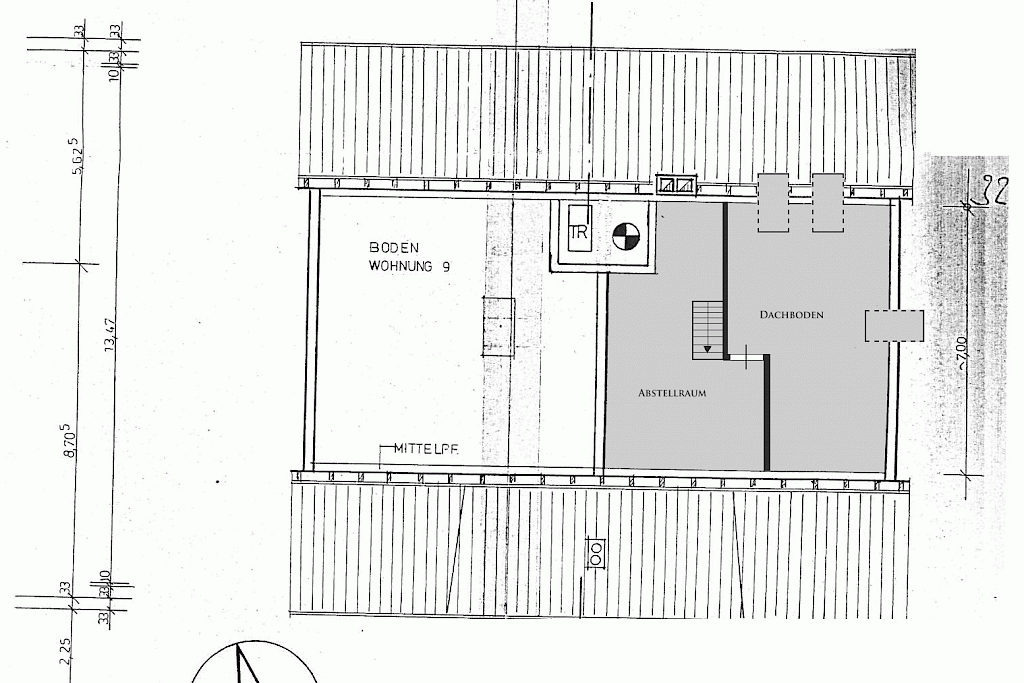
Grundrisse
Energieausweis
- Energieverbrauchsausweis vorhanden
- Energieverbrauch 158 kWh/(m²*a)
- wesentlicher Energieträger: Erdgas
- Energieverbrauch für Warmwasser vorhanden
- Erstellungsdatum bis 30.04.2014 (EnEV 2009)