Derzeit befinden sich 189 Immobilienobjekte im Sortiment
Charmantes Reetdach-Domizil mit liebevollen Details, zauberhaftem Gartenbereich und Nebengebäude im Zentrum von Kirchhatten/ nahe Oldenburg




















Daten
- Objektnr.:
- Referenz 170117
- Lage:
- 26209 Kirchhatten
- Wohnfläche:
- 157 m²
- Nutzfläche:
- 75 m²
- Baujahr/Baubeginn:
- 1798/1998/2004
- Preis:
- VERKAUFT
Objektbeschreibung
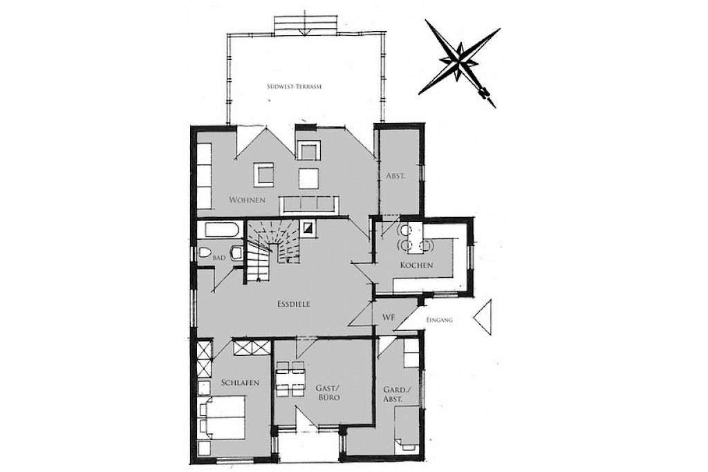
Das Jahr 1798 ist das Ursprungsbaujahr für dieses charmante Reetdach- Anwesen in Kirchhatten. Es wurde im Jahre 1998 aufwändig modernisiert, u.a. neue Heizung mit Brennwerttechnik, neue Fenster mit Wärmeverglasung, komplette Erneuerung der Elektroanlagen sowie Neugestaltung der Außenterrasse. Im Jahre 2004 haben die jetzigen Eigentümer das Reetdach neu eindecken lassen sowie das Obergeschoss vollständig ausbauen lassen. Das Obergeschoss bietet Ihnen nun zwei geräumige Schlafzimmer sowie ein modernes Bad sowie Flurbereich mit einer offenen Eichentreppe ins Erdgeschoss. Das Erdgeschoss des Domizils unterteilt sich in einen großzügigen Wohnbereich mit Zugang zur Außenterrasse, eine Küche mit moderner Einbauküche und angrenzendem Vorratsraum, eine einladende Essdiele, ein Wannenbad, zwei Schlafzimmer, ein Garderobenzimmer sowie Windfang. Abgerundet wird dieses interessante Immobilienangebot durch eine geräumige Scheune mit elektrischem Garagentor, einen Carport- Stellplatz sowie einer idyllischen Gartenanlage mit Obstbäumen.
Lage
Das Wohnhaus liegt in zentraler Wohnlage von Kirchhatten und bietet Ihnen in nur wenigen Minuten mit dem Fahrrad oder PKW: verschiedene Einkaufsmöglichkeiten, Grundschule und Kindergarten, Banken, Ärzte und Apotheken sowie diverse Freizeiteinrichtungen (Freibad, Golfplatz Oldenburger Land). Dennoch genießen Sie mit diesem Domizil die naturverbundene Lage und einen reizvollen Naturausblick. Dieser Ortsteil der Gemeinde Hatten im Landkreis Oldenburg liegt ca. 16 km entfernt vom Herzen der Residenzstadt Oldenburg. Sie erreichen in ca. 5 PKW-Minuten die Autobahnauffahrt Hatten zur A28 mit bequemer Anbindung Richtung Bremen und Oldenburg. Ebenfalls ist eine Busverbindung nach Oldenburg gegeben.
Grundrisse
Ausstattung
- Neugestaltung des Dachgeschosses mit zwei Kinderzimmer sowie einem modernen Badbereich und Flur mit offener Echtholz- Eichentreppe ins Erdgeschoss (Realisierung im Jahre 2004)
- Echtholzfenster mit Sprossenteilung und Wärmeverglasung (aus dem Jahre 1998)
- bodentiefe Fensterelemente im Wohnbereich dienen als Zugang zur Außenterrasse und sorgen für ein lichtdurchflutetes Wohnambiente
- Neugestaltung der markanten Frontansicht mit Türvorbau als Grootdör
- Erneuerung der gesamten Elektroanlage im Jahre 1998
- Gas- Brennwert- Heizungsanlage (Baujahr 1998), Beheizung der Räumlichkeiten durch weiße Plattenheizkörper
- moderne Einbauküche mit hochwertigen Elektrogeräten „Fabrikat NEFF“ und großem Ceranfeld, Gestaltung mit hochglanz- weißen Fronten (grifflos) sowie hellgrauer Arbeitsplatte (Einbau im Jahre 2010)
- Fußboden in der Essdiele, in der Küche, im Bad Erdgeschoss als auch im Windfang mit terrakottafarbenen Fliesen gestaltet; teilweise Sicht auf das alte Ständerwerk im Erdgeschoss
- weiß lackierte Innentüren im Originalzustand und mit unterschiedlichen Höhe
- integrierte Decken- Halogenspots in allen Räumen des Obergeschosses installiert
- teilweise Sichtbalken im Obergeschoss
- Badbereich im Obergeschoss neu gestaltet im Jahre 2004, ausgestattet mit Badewanne mit Echtglas- Duschabtrennung, Waschtischanlage mit zwei modernen Aufsatzwaschbecken sowie wandhängendem WC, Sanitärobjekte in weiss; liebevolle Details u. a. eingelassene Ablagefächer mit Glasböden
- Fußboden im Badbereich im Obergeschoss mit modernem Kork versehen
- Badbereich im Erdgeschoss ausgestattet mit Badewanne, Waschtisch und WC, Sanitärobjekte in weiss
- Fußböden in den Schlafräumen im Erd- und Obergeschoss sowie im Wohnbereich mit Teppichfußboden belegt (unterhalb des Teppichbodens befinden sich im Erdgeschoss Holzdielen)
- Der Charme des über 200 Jahre alten Reetdachhauses wurde trotz umfassender Modernisierung weitestgehend erhalten
- geräumiges Nebengebäude mit integrierter Garage und elektrischen Rolltor sowie ausreichend Abstellfläche für Fahrräder, Gartengeräte und Hobbyzwecke
- Dach der Scheune im Jahre 2010 erneuert, ebenso wurde ein neuer Estrich verlegt und die Holzverkleidungen erneuert
- 2010 Anbau eines Carports
- Neugestaltung der Pflasterung im Carportbereich sowie der Wegeflächen rund um das Haus
- großzügige Außenterrasse in idealer Südwest- Ausrichtung im Jahre 1998 errichtet; genießen Sie den herrlichen Ausblick in den idyllischen Garten
- liebevoll angelegte Gartenanlage mit vielfältiger Gestaltung mit diversen Sträuchern, Obstbäumen und Sträuchern
- Vorgartenbereiche aufwändig gestaltet mit Buchsbaumhecke und diversen Stauden
- TV- Empfang über Kabel
Energieausweis
- Energiebedarfsausweis vorhanden
- Endenergiebedarf 192 kWh/(m²*a)
- wesentlicher Energieträger: Gas
- Energieeffizienzklasse: F
- Erstellungsdatum ab 01.05.2014 (EnEV 2014)